Knotenpunkt
Diplomarbeit von Thomas Cremers

Diplomarbeit von Thomas Cremers
Universität der Künste Berlin Prof. Krischanitz Prof. Ranner WM Graff 2008
.
Die hier vorgestellte Diplomarbeit von Thomas Cremers aus dem Jahr 2008 ist eine Auseinandersetzung mit der Realität und den Möglichkeiten des Wasserturms und des Oberhausener Hauptbahnhofs. Im Rahmen der Ausstellung Leerstand09 wurde die Arbeit hier vor Ort im Bahnhof mit Postern und Modellen präsentiert.

Oberhausen Hbf
Ausgangssituation
Im Rahmen meiner Diplomarbeit beschäftige ich mich mit dem Oberhausener Hauptbahnhof. Ich untersuche in meiner Arbeit die Chancen, die ein solcher Standort für die Kulturlandschaft Oberhausens und des Ruhrgebiets mit sich bringt. Das Ruhrgebiet ist, repräsentiert durch Essen, Kulturhauptstadt Europas 2010 und sieht sich dabei als Städtegemeinschaft, die als Netzwerk zusammenhängt und als Ganzes in Erscheinung tritt. Als Kernstadt des Ruhrgebiets liegt Oberhausen zentral in dieser Städtegemeinschaft und bildet einen Knotenpunkt dieses Netzwerks. Als Beitrag Oberhausens zur RUHR.2010 ist die kulturelle Umnutzung einer ehemaligen Zinkfabrik geplant, welche nördlich des Bahnhofs liegt und sich mit einem Museumsbahnsteig bis auf das Gelände des Bahnhofs ausdehnt.
Durch einen Kunstverein im ehemaligen Wasserturm erfolgt bereits aktuell eine kulturelle Nutzung des Bahnhofs. Der Turm ist in erster Linie Arbeits- und Produktionsort von Künstlern und dient als Ausgangspunkt für künstlerische Interventionen in den ehemaligen Wassertanks im 6. OG des Turms, im Bereich des Bahnhofs und in der Stadt Oberhausen. Die neue Nutzung des Turms begann mit einer Vorführung von Filmen der Oberhausener Kurzfilmtage in den ehemaligen Wassertanks. Bei dieser Veranstaltung präsentierte sich der Ort als hochwertiges Raumerlebnis. Im Folgenden wurden dort Tonaufnahmen und Musikstücke eingespielt, die vor allem den hallenden Klang der zylindrischen Tanks nutzten. Durch die Realisierung von Tank-FX entstand eine preisgekrönten Installation, die aus den Tanks ein analoges Effektgerät machte, das – über das Internet nutzbar – Sounddaten unterschiedlichster Art in den Wassertank abspielte, wieder aufnahm und zurück sendete. Auch der Bahnhof und sein Umfeld wurden bereits als Ort künstlerischer Interventionen genutzt.
Innerhalb einer gedachten Ruhrstadt hat der Bahnhof Oberhausen also bereits heute spannende Voraussetzungen, um sich zu einem kulturellen Knotenpunkt entwickeln zu können, die durch meine Arbeit gestärkt und erweitert werden sollen.

Idee
In meinem Entwurf baue ich die existierenden Ideen einer Künstlerplattform im Wasserturm aus.
Die Idee des projektbezogenen Arbeitens junger, experimentierfreudiger Künstler wird durch großzügige Atelierräume im Bahnhofsturm ermöglicht. Die Künstler nutzen dabei weiterhin die Wassertanks als Experimentierraum und den Bahnhof und sein Umfeld als Inspirationsquelle. Dieser kreativen Plattform steht eine neu geplante Kunsthalle gegenüber, die sich dem klassischen Ausstellen kommerziell wirksamer Kunst widmet. Für diesen Zweck implantiere ich eine Kunsthalle in die Bahnhofsstruktur. Kunst wird nun nicht mehr nur konzipiert und produziert, sondern auch vor Ort ausgestellt. Der Netzwerkgedanke der Kulturhauptstadt RUHR.2010 wird durch die Unterbringung der Kunsthalle direkt im Bahnhof unterstrichen. Sie liegt so gut erreichbar für eine dezentral organisierte Kulturveranstaltung, die sich über das gesamte Ruhrgebiet erstreckt. Der Bahnhof wird zum Anschluß Oberhausens an das Netzwerk der Kulturhauptstadt und bildet eine der ersten Anlaufstellen für Besucher der Stadt. Aber auch für Oberhausens Stadtstruktur hat die Integration von Kunst an diesem Ort verbindende Wirkung, durch meinen Entwurf entsteht ein kultureller Brückenkopf zwischen der Innenstadt und den entstehenden kulturellen Einrichtungen nördlich des Bahnhofs (Alte Zinkfabrik).

Architektur
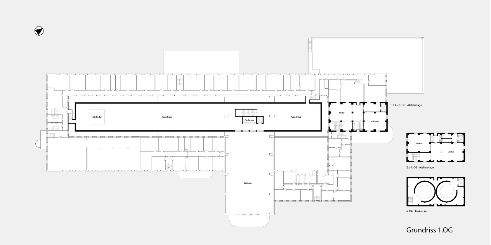
Der Baukörper des Bahnhofs ist als Konglomerat sich verschneidender Kuben zu betrachten. Mit der Kunsthalle setze ich einen weiteren Kubus in dieses Ensemble ein. Die Kunsthalle legt sich in die Struktur des Bahnhofs und nimmt Bezug auf die Außenkanten des Atelierturms, dabei hält sie Abstand zum umliegenden Bestand. Einzig in der Eingangshalle des Bahnhofs verschneiden sich die Baukörper. Dieser Durchdringungspunkt markiert den Eingangsbereich der Kunsthalle und gliedert den Baukörper in zwei Ausstellungsbereiche.
Man erschließt die Ausstellungshalle durch einen möbelartig in die Bahnhofshalle eingestellten Körper, in dem sich erdgeschossig die Kasse befindet, in der darüberliegenden Etage ist an gleicher Stelle die Garderobe angeordnet. Die Kunsthalle nutzt die Infrastruktur des Bahnhofs parasitär mit und beschränkt sich in ihrer Funktion auf das absolut Wesentliche. Alle Nebenräume werden in die Räumlichkeiten des Bahnhofs eingebracht, so dass die Halle klar und schlicht der Ausstellung dient. Fluchtwege und Toiletten werden über Tapetentüren erschlossen, die Anlieferung der Kunstwerke erfolgt über einen Hebeboden. Die Belichtung erfolgt über eine Museumsdecke aus opakem Glas sowohl mit Tageslicht als auch mit Kunstlicht. Bei Bedarf kann die Halle durch Rollos auch abgedunkelt werden. Vom Bewegungsraum des Bahnhofs wird die Kunsthalle als neue Decke in der Untersicht wahrgenommen und durch das hinterleuchtete Fassadenmaterial belichtet. Das Fassadenmaterial besteht aus einem Streckmetall aus patiniertem Kupfer – als ein Zitat der Bahnhofsuhr und der Vordächer des Bahnhofs. Es hüllt die Baukörper ein und unterstützt eine monolithische Gesamtwirkung, die sich im Fugenraster gliedert.
Der Atelierturm wird vom Bahnhofsinnenraum und direkt vom Stadtraum aus erschlossen. Im Erdgeschoss befindet sich ein Café, das die arbeitenden Künstler und die Bahnhofsbesucher in Kontakt treten lässt, von hier aus erreichen die Künstler Ihre Ateliers. Die Atelierräume entstehen durch Wand- und Deckendurchbrüche aus der Grundstruktur des Wasserturms. So entstehen fünf großzügige Arbeitsräume mit neun auf elf Metern Grundfläche, die zum Teil über zwei Etage reichen. Die Ateliers nutzen die begrenzte Fläche des Wasserturms voll aus und ermöglichen großen Spielraum für das Arbeiten an unterschiedlichsten Projekten verschiedener Disziplinen. Dafür lege ich die Erschließungen in die gegenüberliegenden Turmecken. Die Ateliers sind diagonal versetzt angeordnet, in ihren Verschnittflächen befinden sich die Nebenräume. Die Wassertanks wurden von mir mit einem Eingang versehen, der die Nutzung für kommende Projekte der Künstlerplattform vereinfacht und diesem sehr speziellen und für Besucher unerwarteten Ort ein neues Leben gibt.
